The Daily Insight

Connected.Informed.Engaged.

news

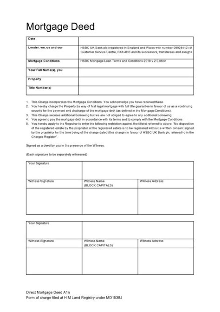
What is a deed in mortgage

Written by Mia Fernandez — 0 Views

A mortgage deed is a legally binding document outlining the terms of a mortgage that puts a lien on the house until the lender repays the loan in full.

What is the difference between a mortgage and a deed?

Deed: This is the document that proves ownership of a property. It transfers ownership of the property to the grantee, also known as the buyer. … Mortgage: This is the document that gives the lender a security interest in the property until the Note is paid in full.

What is the purpose of a deed?

A deed is a signed legal document that transfers ownership of an asset to a new owner. Deeds are most commonly used to transfer ownership of property or vehicles between two parties. The purpose of a deed is to transfer a title, the legal ownership of a property or asset, from one person or company to another.

Does a deed mean you own the house?

A house deed is the legal document that transfers ownership of the property from the seller to the buyer. In short, it’s what ensures the house you just bought is legally yours.

Can you be on a mortgage but not the deed?

If your name is on the mortgage, but not the deed, this means that you are not an owner of the home. Rather, you are simply a co-signer on the mortgage. Because your name is on the mortgage, you are obligated to pay the payments on the loan just as the individual who owns the home.

What are my rights if my name is on a deed?

Your name on a deed signifies ownership. However, your rights of ownership have limits. The government imposes such police-power limits as zoning and building codes. Other limits result from your deed and the way in which you own the property.

Does your mortgage lender hold your deeds?

The title deeds to a property with a mortgage are usually kept by the mortgage lender. They will only be given to you once the mortgage has been paid in full. But, you can request copies of the deeds at any time.

What are the four types of deeds?

  • Quitclaim Deed.
  • Deed of Trust.
  • Warranty Deed.
  • Grant Deed.
  • Bargain and Sale Deed.
  • Mortgage Deed.

Is a deed and a title the same?

The biggest difference between a deed and a title is the physical component. A deed is an official written document declaring a person’s legal ownership of a property, while a title refers to the concept of ownership rights.

What does being on the deed of a house mean?

The person whose name is on the deed has the title to the property. It doesn’t matter whether the property was transferred by purchase, inheritance or gift. It’s the deed that transfers title. On the deed, you’ll find the property’s legal description, including property or boundary lines.

Article first time published on

What are the three types of deeds?

  • General Warranty Deed. …
  • Special Warranty Deed. …
  • Quitclaim Deed.

What happens if a deed is not recorded after closing?

An unrecorded deed is a deed for real property that neither the buyer nor the seller has delivered to an appropriate government agency. … Failure to record a deed effectively makes it impossible for the public to know about the transfer of a property.

Should I put my wife on the house deed?

While there are some good reasons to add your new spouse to your Deed, there’s also a reason why you shouldn’t. Ultimately, there is no right answer. When you put your spouse on the Deed to a property that you owned individually prior to marriage, you are creating what’s called a tenancy by the entireties.

Should I put my girlfriend on the deed to my house?

You should NOT put your girlfriend’s name on the house. You can change this AFTER you are married, IF you get married. You can have a separate agreement with your girlfriend that you will put her name on the house if you should get married, but DO NOT put her name on the deed now.

What happens if my husband died and I'm not on the mortgage?

If there is no co-owner on your mortgage, the assets in your estate can be used to pay the outstanding amount of your mortgage. If there are not enough assets in your estate to cover the remaining balance, your surviving spouse may take over mortgage payments.

What if I can't find my house deeds?

If the deeds went missing or were destroyed while in the custody of a law firm or financial institution then, if satisfied with the evidence, the Land Registry will register the property with an absolute title. If not, then it is usually the case that the property will be registered with a possessory title.

What happens to my deeds when mortgage paid off?

When you pay off your mortgage you might be required to pay the mortgagee (the lender) a final fee to cover administration and the return of your deeds). At this time your deeds will be sent to you for safekeeping. You can either keep them safe or ask your bank or solicitors to hold them for you.

Can you register a property without deeds?

In order to register a property without title deeds, a conveyancer would need to reconstitute the deeds. This involves putting together sufficient evidence to allow the Land Registry to determine if registration is possible. Each application will be determined on its individual facts.

Can my girlfriend be on the deed and not the mortgage?

It’s perfectly legal to co-own a house with someone to whom you’re not married. You can put your name on the deed even if you don’t sign the mortgage, provided the lender agrees. Taking title as unmarried partners or friends, however, is often more complicated than when a married couple buys a house.

Is my wife entitled to half my house if it's in my name?

Under California Community Property Law, the short answer is likely YES, even if your spouse was never added to title. This may seem surprising to you, but this result is based on the general premise of California Community Property Law that anything earned by either party during marriage is 100% community property.

Can you sell a house if your name is not on the deeds?

In short, yes you can sell your house without the deeds, however you must be able to prove through other means that you are the owner of the property. As the deeds are the assortment of documents which usually prove ownership, proving it without them can be a more protracted process, but it is by no means impossible.

Do banks keep title deeds?

The title deeds to your home are paper documents that record the chain of ownership of your property. … The bank will hand the house deeds over to you when your mortgage is finally paid off, and that’s when you need to find somewhere very safe to store them.

What type of deed is best?

Bottom Line. When you’re looking at purchasing a piece of land, there are 5 main types of deeds that you can use: Warranty Deed, Special Warranty Deed, Quitclaim Deed, Bargain and Sale Deed, and a Grant Deed. A Warranty Deed is the best of the best.

What is the most common type of deed?

When committing to a general warranty deed, the seller is promising there are no liens against the property, and if there were, the seller would compensate the buyer for those claims. Mainly for this reason, general warranty deeds are the most commonly used type of deed in real estate sales.

What is the strongest form of deed?

A Warranty Deed is the strongest deed and warrants to the Grantee: That the Grantor has not previously conveyed the estate or any interest therein to anyone except the Grantee; and.

What if my name is on the mortgage but not on the deed?

Foreclosure. In situations where your name is on the mortgage and not the deed, you may not even live at the property. … Even though the other mortgage holder might pay the bill each month, you are still legally obligated to repay the debt.

What does putting someone on a deed mean?

A deed that conveys an interest in your real estate ownership (“adds someone on”) has the legal effect of giving that additional person the same bundle of rights to which you are entitled. Once the conveyance happens, it cannot be undone except with that other additional owner’s consent.

What happens if my husband dies and the house is in his name?

If you and your deceased spouse own a home as joint tenants with a joint bank account, the ownership of the property will be passed straight to you. You can then remain in the home or sell up if you cannot afford any outstanding mortgage or simply fancy a change.

When you get married who owns the house?

The common law system provides that property acquired by one member of a married couple is owned completely and solely by that person. Of course, if the title or deed to a piece of property is put in the names of both spouses, however, then that property would belong to both spouses.

Can two people own a house?

Yes. Many lenders allow two families to combine their respective incomes in order to jointly purchase a house. … Lenders may also require both families to hold equal ownership rights of the house. Matters such as property use, expenses, and title are best negotiated in advance through the mediation of attorneys.